Trong bối cảnh quỹ đất ngày càng khan hiếm, đặc biệt với diện tích phổ biến chỉ khoảng 5x20m, việc khai thác tối đa công năng sử dụng trở thành yếu tố then chốt. Bạn vừa muốn thiết kế vừa đảm bảo tính thẩm mỹ, vừa chú trọng tính thực tiễn, thì nhất định tham khảo mẫu căn hộ 4 tầng hiện đại dưới đây do công ty thiết kế căn hộ cho thuê tại Đà Nẵng nhé!
Thông tin công trình

- Chủ đầu tư: Anh Thường
- Địa chỉ: Tân Trà – Ngũ Hành Sơn – Đà Nẵng
- Loại hình: Căn hộ cho thuê
- Diện tích: 5x18m
- Số tầng: 4 tầng
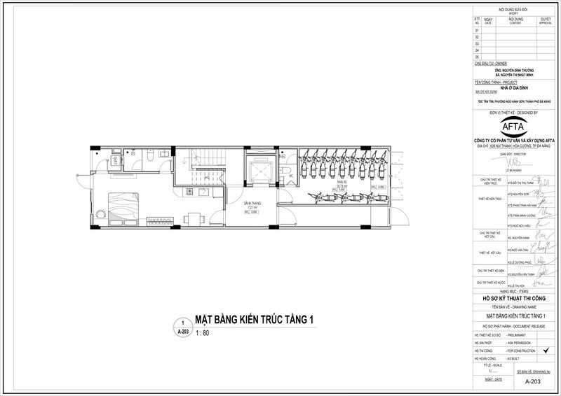
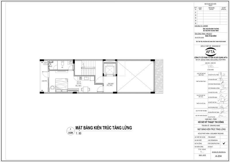
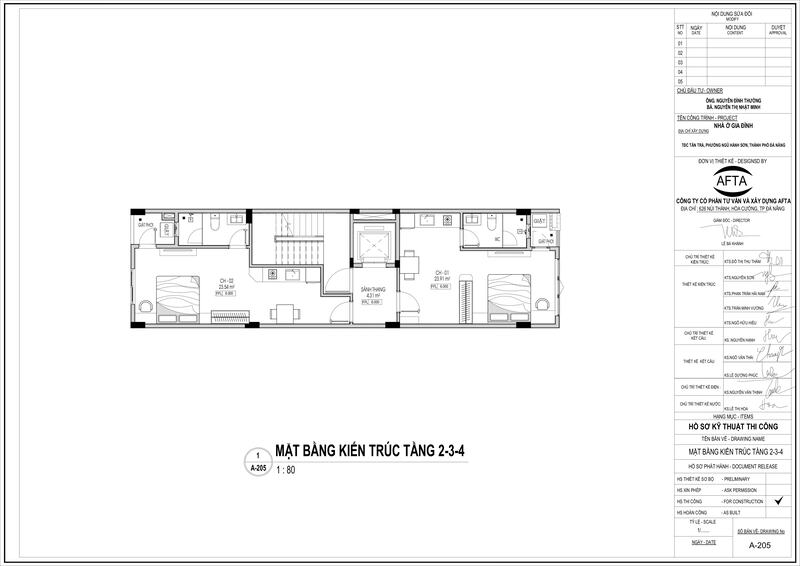
- Công năng:
+ Tầng 1: Khu vực trước được thiết kế thành khu để xe, phía sau gồm 1 căn hộ cho thuê đầy đủ công năng

+ Tầng lửng: bố trí 1 phòng căn hộ

+ Tầng 2-3-4: mỗi tầng gồm 2 căn hộ, phía trước 1 căn và phía sau 1 căn

Thiết kế phối cảnh 3D căn hộ 4 tầng hiện đại

Thiết kế 3D nội thất
Mang phong cách hiện đại làm chủ đạo, công trình được các kiến trúc sư thể hiện theo lối tối giản nhưng vẫn nổi bật với những chi tiết sáng tạo. Nổi bật ở mặt tiền là gam màu xám trầm, vừa gợi nét sang trọng, vừa tạo cảm giác huyền bí. Điểm nhấn độc đáo nằm ở phần ban công với những đường cong mềm mại, giúp tổng thể trở nên sinh động và tránh sự đơn điệu.
Dù diện tích xây dựng giới hạn trong khuôn đất 5x20m, các kiến trúc sư đã khéo léo sử dụng hệ cửa kính lớn, mở rộng tầm nhìn và mang ánh sáng tự nhiên tràn ngập không gian. Nhờ đó, nội thất bên trong trở nên thông thoáng, thoải mái hơn nhiều so với diện tích thực tế.
Xem thêm: Các dự án thiết kế của AFTA
Trên đây là công trình căn hộ 4 tầng được AFTA thiết kế dựa trên những nhu cầu và mong muốn của khác hàng. Hy vọng với mẫu thiết kế trên có thể giúp bạn có thêm 1 ý tưởng mới để phác họa lên công trình của mình. Và nến cần thêm sự hỗ trợ thì hãy liên hệ với AFTA thiết kế và thi công để được hỗ trợ chi tiết nhé!
















