Cùng với Xây dựng căn hộ Đà Nẵng tham khảo mẫu thiết kế căn hộ cho thuê Đà Nẵng với không gian xanh làm chủ đạo, tạo nhiều không gian sống mát lành, thoải mái mà không phải mẫu thiết kế căn hộ đẹp nào cũng có được. Chi tiết bên dưới!
Thiết kế căn hộ cho thuê đẹp tại Đà Nẵng đầy đủ tiện nghi | CĐT: Anh Quang
1. Thông tin thiết kế căn hộ cho thuê đẹp tại Đà Nẵng, mời các bạn tham khảo
Chủ đầu tư: chị Tâm – anh Quang
Địa chỉ thiết kế – xây dựng: Đà Nẵng.
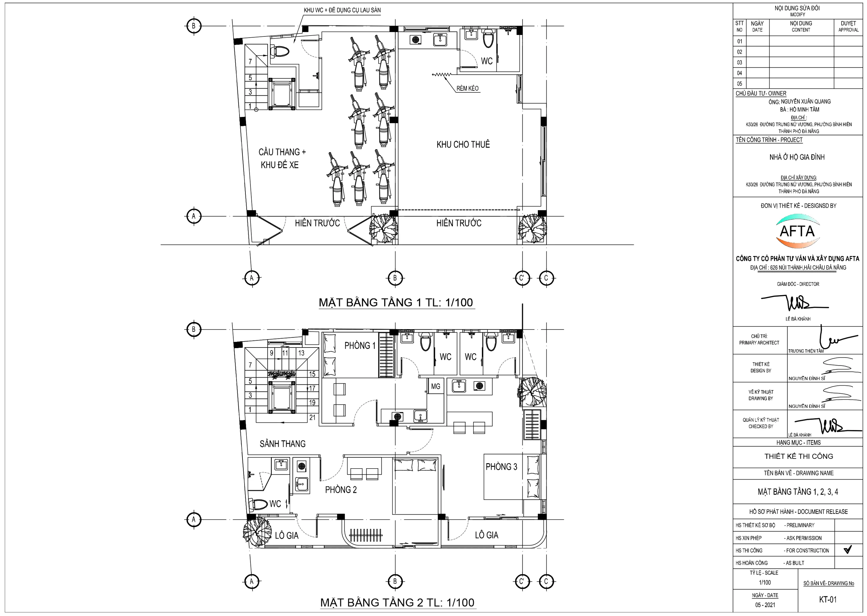
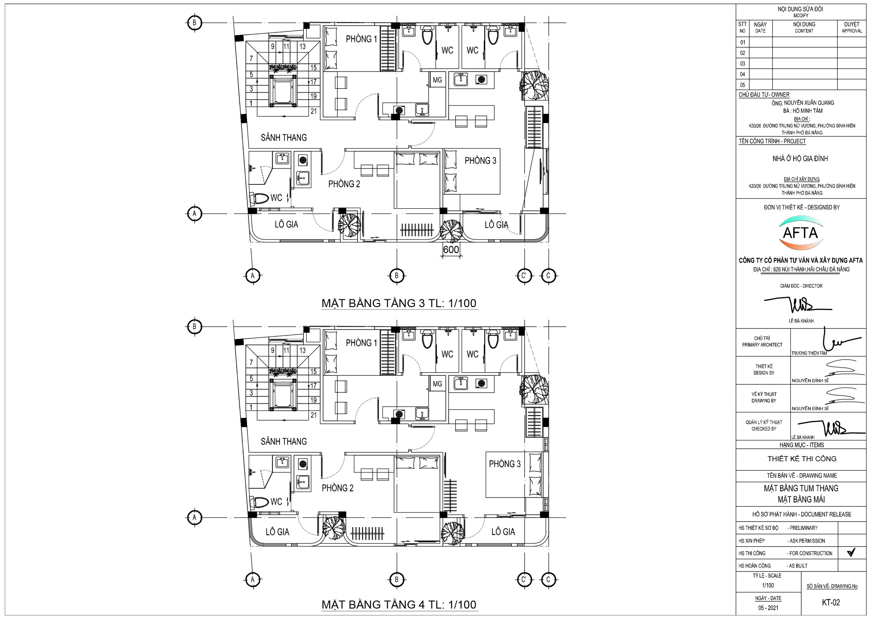
Diện tích đất: 79m2, 4 tầng, diện tích thiết kế 328m2.
Công năng sử dụng:
- Tầng 1: khu vực để xe, khu cho thuê kinh doanh.
- Tầng 2 – 3 – 4: mỗi tầng là 3 căn hộ cho thuê đầy đủ tiện nghi.
Xem thêm báo giá thiết kế căn hộ, khách sạn, nhà phố năm 2022
2. Hình ảnh thiết kế căn hộ cho thuê đẹp tại Đà Nẵng
PHỐI CẢNH NGOẠI THẤT


Video thiết kế căn hộ cho thuê tại Đà Nẵng, xem ngay nhé!
MẶT BẰNG CÔNG NĂNG


NỘI THẤT CĂN HỘ
CĂN HỘ 01










CĂN HỘ 2








CĂN HỘ 3





Quý khách hàng đang tìm kiếm đơn vị thiết kế và thi công căn hộ tại Đà Nẵng và toàn quốc, hãy tham khảo báo giá thi công phần thô và nhân công hoàn thiện Đà Nẵng và toàn quốc TẠI ĐÂY nhé!

Công ty thiết kế nhà Đà Nẵng AFTA
Afta là công ty chuyên thiết kế thi công công trình các loại. Với nhiều năm trong lĩnh vực xây dựng, Afta tự tin mình là đơn vị thi công uy tín tại Đà Nẵng với nhiều loại công trình như: thi công phần thô Đà Nẵng, thi công nhà xưởng Đà Nẵng, thi công phòng trọ Đà Nẵng, thi công căn hộ Đà Nẵng, xây nhà tiền chế Đà Nẵng, … Ngoài ra còn nhận thiết kế các công trình khác như: thiết kế nhà phố đẹp Đà Nẵng, thiết kế khách sạn Đà Nẵng, thiết kế quán cafe Đà Nẵng, thiết kế nội thất đẹp Đà Nẵng, …
Chúng tôi cam kết:
- Tư vấn tận tình, chu đáo, khảo sát thực tế cùng khách hàng tìm ra giải pháp tối ưu nhất
- Chi phí cạnh tranh nhất phù hợp với ngân sách tài chính của khách hàng
- Chất lượng thiết kế và công trình đảm bảo an toàn, giá trị thẩm mỹ và công năng sử dụng
Nhấc máy gọi ngay cho chúng tôi hoặc để lại thông tin liên hệ, thắc mắc AFTA giải đáp sớm nhất và nội dung đầy đủ nhất cho bạn.




