Việc xây dựng các tòa nhà cao tầng sẽ tạo ra nhiều không gian sử dụng, cho phép khai thác linh hoạt để bố trí những công năng khác nhau. Nhờ đó, một tòa nhà cao tầng có thể tích hợp đa dạng chức năng như khu kinh doanh, căn hộ ở, văn phòng cho thuê,… Vậy làm thế nào để tối ưu hóa diện tích và phát huy tối đa công năng của một tòa nhà cao tầng? Hãy cùng tìm hiểu mẫu thiết kế tòa văn phòng AFTA dưới đây nhé!
THÔNG TIN CÔNG TRÌNH
- Chủ đầu tư: Anh Khánh – Chị Lộc
- Đơn vị thiết kế và thi công: Công ty Cổ Phần Tư Vấn Và Xây Dựng AFTA
- Địa chỉ: Đường Song Hào – Ngũ Hành Sơn – Đà Nẵng
- Loại hình: Tòa văn phòng kết hợp căn hộ cho thuê và Nhà ở
- Diện tích: 7,5x16m
- Công năng: 7 tầng + lửng + tum
Xem thêm: Thi công tòa văn phòng AFTA Đà Nẵng
THIẾT KẾ NGOẠI THẤT 3D
CÔNG NĂNG SỬ DỤNG
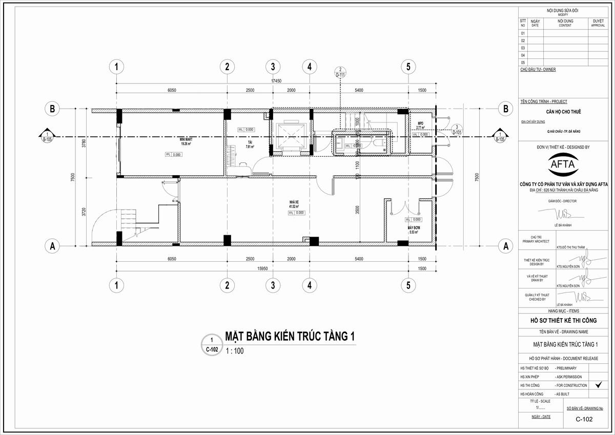
Tầng 1: Khu để xe, khu vực kinh doanh mini mart, phòng bảo vệ, phòng vệ sinh, kho

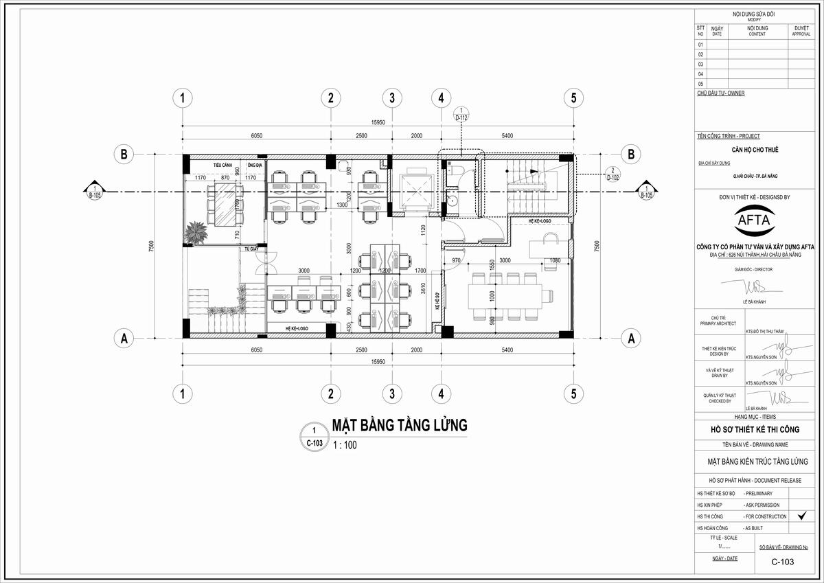
Tầng lửng: Văn phòng công ty AFTA
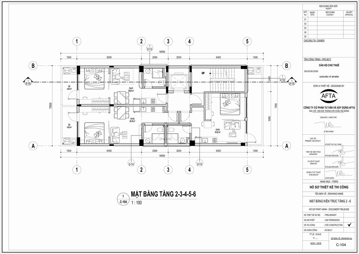
Tầng 2,3,4,5,6: Mỗi tầng gồm 3 căn hộ cho thuê với đầy đủ nội thất
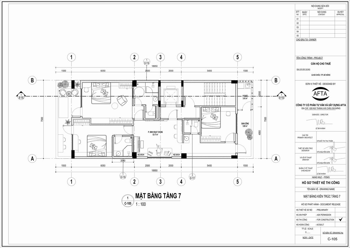
Tầng 7: Nhà ở gia đình của gia chủ bao gồm: 1 phòng khách, 3 phòng ngủ, 3 nhà vệ sinh
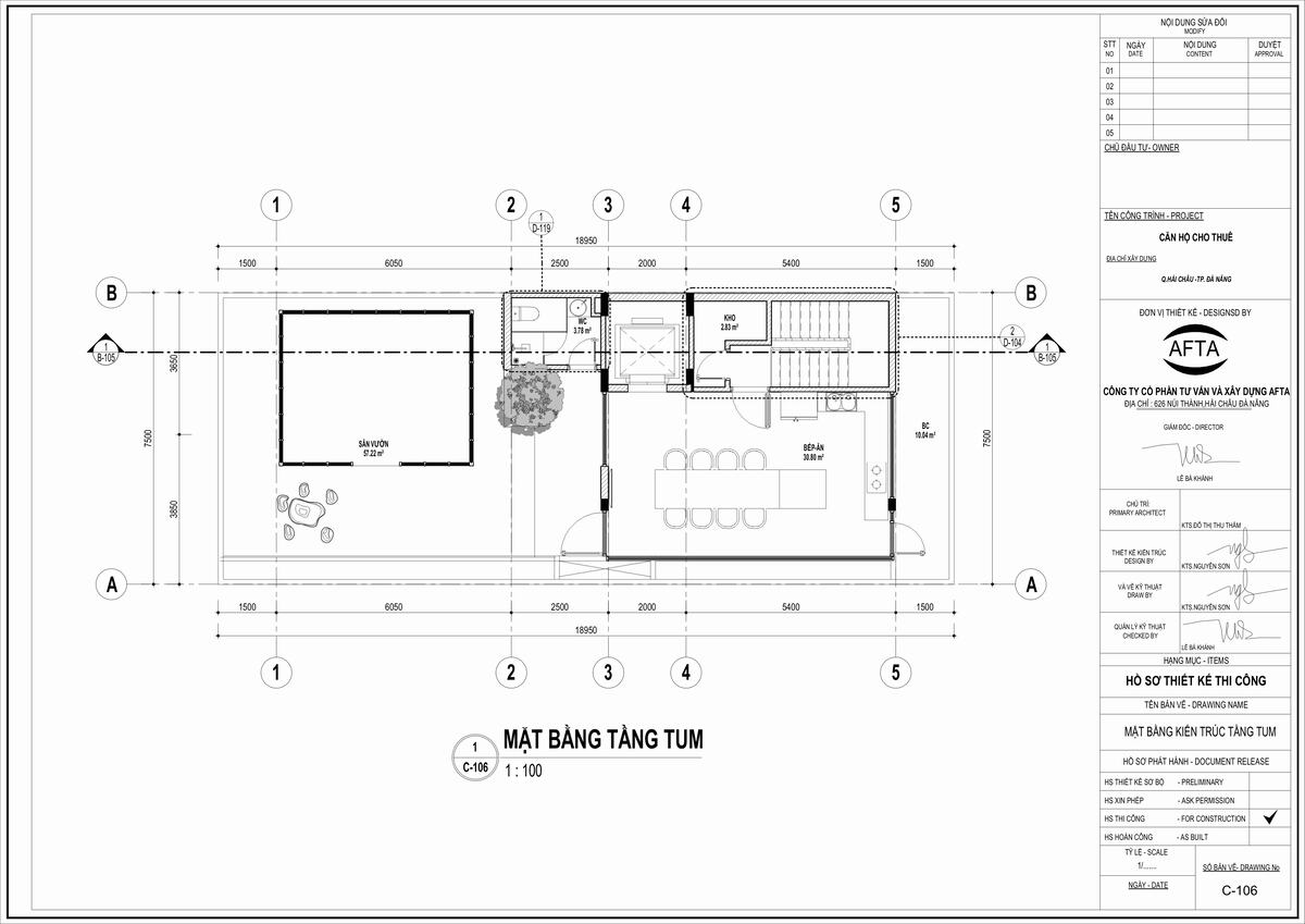
Tầng tum: Phòng bếp, khu vực sân

NỘI THẤT VĂN PHÒNG
Thiết kế nội thất văn phòng được định hướng theo phong cách hiện đại, lấy sự tối giản làm trọng tâm nhằm tối ưu hóa công năng và mở rộng cảm nhận về không gian. Thay vì bố trí nhiều chi tiết cầu kỳ, kiến trúc sư tập trung tổ chức không gian mở một cách khoa học, tạo sự thông thoáng và kết nối linh hoạt giữa các khu vực làm việc.
Gam màu trắng được lựa chọn làm tông màu chủ đạo, không chỉ mang lại vẻ đẹp thanh lịch, tinh tế mà còn góp phần tăng hiệu ứng thị giác, giúp không gian trở nên rộng rãi và sáng sủa hơn. Các chi tiết nội thất, vật dụng và trang thiết bị đều được chọn lọc kỹ lưỡng, ưu tiên những yếu tố thật sự cần thiết, hạn chế tối đa sự dư thừa. Nhờ cách sắp xếp hợp lý và tinh giản này, văn phòng không chỉ gọn gàng, hiện đại mà còn tạo môi trường làm việc thoải mái, chuyên nghiệp và hiệu quả hơn cho nhân viên.
Trên đây là mẫu thiết kế toàn nhà cao tầng với đa dạng công năng, bao gồm kinh doanh, văn phòng, căn hộ cho thuê, nhà ở gia đình. Hy vọng với mẫu thiết kế vừa rồi sẽ giúp bạn có thêm nhiều ý tưởng hay khi xây dựng. Nếu bạn cần tư vấn thiết kế và thi công tòa văn phòng Đà Nẵng có thể liên hệ với AFTA để được tư vấn cụ thể hơn nhé!





















