Đà Nẵng đang trên đà phát triển mạnh mẽ, mở ra vô vàn cơ hội kinh doanh hấp dẫn cho các nhà đầu tư. Trong bối cảnh đó, mô hình xây dựng căn hộ cho thuê ngày càng được ưa chuộng nhờ khả năng mang lại nguồn lợi nhuận ổn định và lâu dài. Nếu bạn đang ấp ủ kế hoạch đầu tư và tìm kiếm ý tưởng thiết kế căn hộ kết hợp kinh doanh cafe quy mô 5 tầng, thì mẫu thiết kế dưới đây từ AFTA chắc chắn sẽ là một gợi ý đáng để tham khảo.
Thông tin dự án căn hộ kết hợp kinh doanh cafe
- Chủ đầu tư: anh Bảo
- Địa chỉ: Cẩm Lệ – Đà Nẵng
- Loại hình: Căn hộ cho thuê kết hợp kinh doanh
- Diện tích: 7x16m
Xem thêm: thiết kế căn hộ cho thuê Đà Nẵng

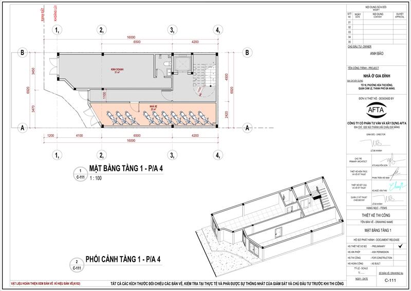
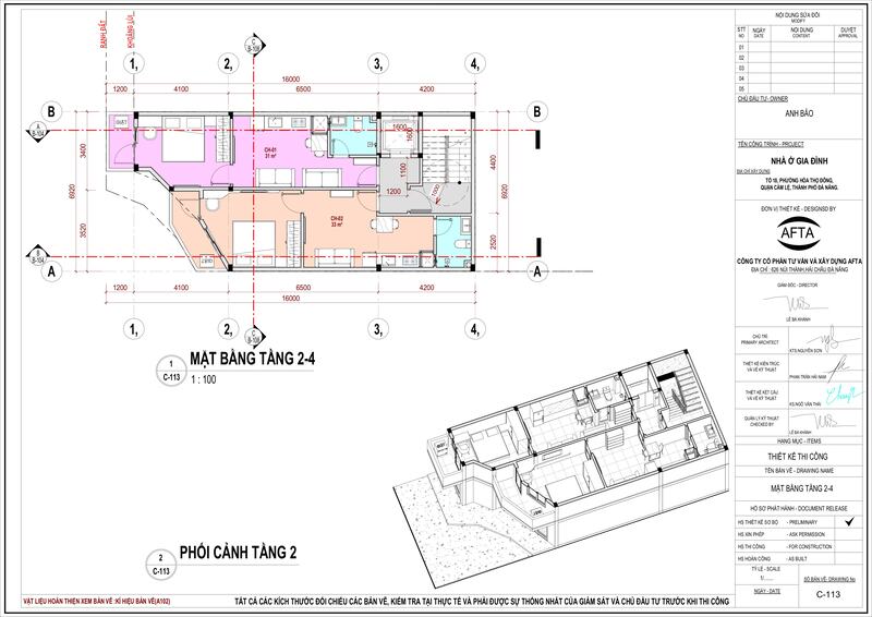
Công năng sử dụng của công trình
Tầng 1: Công năng của tầng 1 gồm 1 khu vực cho thuê và khu vực để xe cho người thuê căn hộ

Tầng 2,3,4: mỗi tầng gồm 2 căn hộ với đầy đủ công năng (Phòng khách + bếp chung, phòng ngủ riêng, phòng vệ sinh, ban công giặt phơi)

Tầng tum: khu vực sân thượng, ô thang máy

Thiết kế 3D ngoại thất căn hộ 5 tầng
Căn hộ được thiết kế với phong cách hiện đại sử dụng từ những vật liệu đơn giản và có giá cả hợp lý. Điều này giúp chủ đầu tư có thể tiết kiệm được rất nhiều chi phí nhưng vẫn đảm bảo được tính thẩm mỹ cho công trình. Mỗi phòng đều có ban công nên đều mang lại cảm giác thông thoáng và mát mẻ cho căn phòng, đảm bảo các phòng đều có ánh sáng.
Trên đây là mẫu thiết kế căn hộ kết hợp kinh doanh được AFTA thiết kế, hy vọng với mẫu này sẽ giúp bạn có thêm những ý tưởng hay để thiết kế một công trình cho riêng mình nhé!






