Với những đối tượng khách hàng là gia đình thì nên thiết kế căn hộ như để nào để tối ưu và đáp ứng được nhu cầu của khách hàng. Nếu bạn đang phân vân về cách giải quyết bài toán này thì hãy tham khảo ý tưởng mẫu căn hộ 5×20 có 2 phòng ngủ dưới đây của AFTA nhé!
Mẫu căn hộ 5×20 có 2 phòng ngủ
Thông tin công trình

- Chủ đầu tư: Anh Thành
- Loại hình: Thiết kế căn hộ cho thuê Đà Nẵng
- Địa chỉ: Sơn Trà – Đà Nẵng
- Diện tích: 5x20m
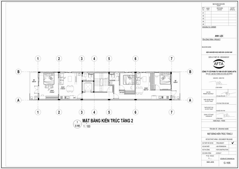
- Công năng: 4 Tầng + 1 lửng + 1 tum
Tầng lửng: gồm 2 căn hộ 1 phòng ngủ đầy đủ nội thất

Tầng 1: Phía trước khu vực để xe, phía sau gồm 1 căn hộ 1 phòng ngủ được bố trí công năng đầy đủ và hợp lý
Tầng 2: Phía trước gồm 1 căn hộ 1 phòng ngủ, phía sau gồm 1 căn hộ 2 phòng ngủ

Tầng 3: Phía trước gồm 1 căn hộ 1 phòng ngủ, phía sau gồm 1 căn hộ 2 phòng ngủ

Tầng 4: Phía trước gồm 1 căn hộ 1 phòng ngủ, phía sau gồm 1 căn hộ 2 phòng ngủ

Thiết kế phối cảnh 3D mặt tiền căn hộ 5×20 2 phòng ngủ

Mặt tiền của căn hộ được thiết kế theo phong cách hiện đại tối giản, mang đến vẻ đẹp tinh tế nhưng vẫn tiết kiệm chi phí đầu tư cho chủ dự án. Với bố cục gọn gàng, đường nét vuông vức và tỷ lệ hài hòa, tổng thể công trình toát lên sự trang nhã và hiện đại. Gam màu trắng chủ đạo được lựa chọn không chỉ giúp tòa nhà trở nên sáng sủa, thanh thoát mà còn tạo cảm giác rộng rãi và sạch sẽ. Đặc biệt, phần tầng một và tầng lửng được ốp đá tự nhiên cao cấp, vừa tạo điểm nhấn sang trọng, vừa nâng tầm giá trị thẩm mỹ cho toàn bộ mặt tiền.

Một điểm nổi bật của công trình này nằm ở mặt tiền hướng Tây – nơi đón trọn ánh nắng gay gắt vào mỗi buổi chiều. Điều này khiến không gian sinh hoạt của các căn hộ phía trước dễ bị ảnh hưởng bởi nhiệt độ và ánh sáng mạnh. Nhận thấy bất tiện đó, các kiến trúc sư đã khéo léo thiết kế hệ thống rèm che nắng linh hoạt, có thể dễ dàng kéo ra để tận dụng ánh sáng tự nhiên vào buổi sáng hoặc thu lại khi nắng chiều trở nên gắt gao.
Xem thêm: Mẫu căn hộ 2 phòng ngủ đẹp
Phần kết
Trên đây là mẫu căn hộ 5x20m có 2 phòng ngủ do AFTA thiết kế, mọi người có thể tham khảo để lấy ý tưởng cho căn hộ của mình. Ngoài ra nếu bạn cần tư vấn kỹ hơn thì có thể liên hệ qua Facebook AFTA thiết kế và thi công để được hỗ trợ kỹ hơn nhé!





