Hiện nay, việc sở hữu một mảnh đất rộng rãi là điều không hề dễ dàng. Thông thường, các chủ đầu tư chỉ có trong tay một lô đất khoảng 5x20m. Với diện tích này, để bố trí công năng hợp lý đòi hỏi phải tính toán, cân nhắc rất nhiều yếu tố. Nếu bạn cũng đang sở hữu lô đất tương tự và muốn xây dựng căn hộ Đà Nẵng, hãy tham khảo ngay mẫu căn hộ 5×20 phong cách hiện đại dưới đây của AFTA.
Những khó khăn trong việc thiết kế căn hộ 5×20
Thách thức lớn nhất khi thiết kế căn hộ 5×20 theo phong cách hiện đại chính là giới hạn về diện tích. Với chiều ngang chỉ 5m, khả năng lấy sáng tự nhiên cho các phòng thường bị hạn chế hầu như chỉ lấy sáng được ở phía đầu và cuối công trình, phần ở giữa thường sẽ không có ánh sáng tự nhiên. Bên cạnh đó, nếu mỗi tầng chia thành 3–4 phòng, không gian ở giữa sẽ trở nên chật hẹp và bí bách hơn.
Xem thêm: 10 cách lấy sáng tự nhiên cho khách sạn

Thứ hai, diện tích nhỏ ảnh hưởng trực tiếp đến việc bố trí công năng. Các phòng buộc phải thu gọn, từng khu vực sinh hoạt cần được điều chỉnh linh hoạt để vừa đảm bảo sự hài hòa, vừa đáp ứng nhu cầu sử dụng. Việc lựa chọn nội thất cũng phải dựa trên công năng, nếu sử dụng nội thất quá lớn sẽ ảnh hưởng đến không gian sử dụng.
Thứ ba, diện tích vốn đã hạn chế còn bị thu hẹp hơn do phải tuân thủ các quy định xây dựng. Những yêu cầu như dành diện tích cho cầu thang bộ, thang máy, khoảng lùi… khiến phần không gian sử dụng thực tế bị giảm đáng kể
Mẫu căn hộ 5×20 phong cách hiện đại
Thông tin công trình
- Chủ đầu tư: Chị Châu
- Địa chỉ: Sơn Trà – Đà Nẵng
- Diện tích: 5x20m
- Loại hình: Thiết kế căn hộ cho thuê Đà Nẵng
- Số tầng: 6 tầng – 1 lửng – 1 tum

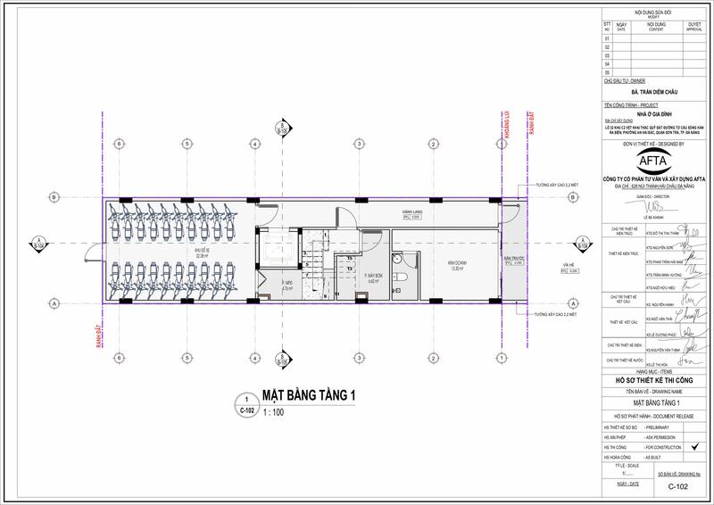
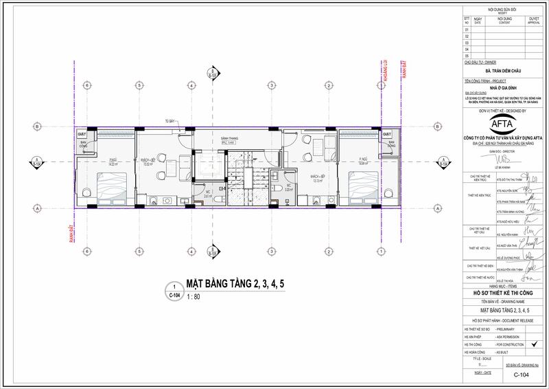
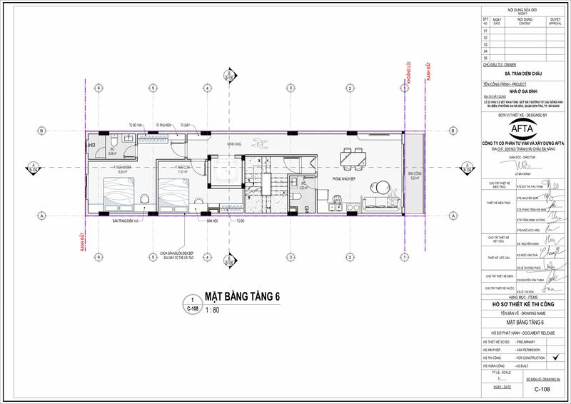
Công năng công trình
- Tầng 1: Phía trước khu vực kinh doanh, phía sau khu để xe cho cư dân

- Tầng lừng: 1 căn hộ cho thuê đầy đủ công năng

- Tầng 2, 3, 4, 5: Mỗi tầng gồm 2 căn hộ 1 phòng ngủ đầy đủ chức năng

- Tầng 6: 1 căn hộ 2 phòng ngủ, 2 nhà vệ sinh, phòng khách bếp, ban công

Thiết kế 3D mặt tiền

Những lưu ý khi thiết kế căn hộ diện tích nhỏ
1. Tối ưu hóa ánh sáng tự nhiên

Với chiều ngang chỉ 5m, việc lấy sáng cho toàn bộ không gian là một thách thức lớn. Khi thiết kế, cần ưu tiên bố trí cửa sổ, giếng trời hoặc khoảng thông tầng để ánh sáng có thể lan tỏa khắp các phòng. Ánh sáng tự nhiên không chỉ giúp căn hộ thông thoáng hơn mà còn tạo cảm giác rộng rãi và dễ chịu.
Sử dụng gam màu sáng, vật liệu phản xạ ánh sáng và thiết kế trần cao sẽ giúp căn hộ 5x20m trông rộng rãi hơn. Ngoài ra, nên hạn chế các chi tiết trang trí rườm rà để giữ sự thông thoáng cho không gian.
2. Phân chia không gian hợp lý

Nếu chia mỗi tầng thành quá nhiều phòng, không gian sẽ bị chia cắt và trở nên chật hẹp. Thay vào đó, nên ưu tiên các không gian mở hoặc thiết kế đa năng, kết hợp nhiều chức năng trong cùng một khu vực để tăng tính linh hoạt. Bên cạnh đó, diện tích nhỏ đòi hỏi mỗi phòng phải được sắp xếp hợp lý, đáp ứng đúng nhu cầu sử dụng. Nội thất cần lựa chọn dựa trên công năng, ưu tiên các thiết kế gọn gàng, thông minh và dễ di chuyển để phù hợp với từng khu vực.
3. Tuân thủ quy định xây dựng
Khi thiết kế, phải tính toán diện tích dành cho cầu thang, thang máy, khoảng lùi… theo đúng luật xây dựng. Điều này đồng nghĩa với việc diện tích sử dụng thực tế sẽ giảm, nên cần lên kế hoạch từ đầu để tránh lãng phí không gian.
Trên đây là mẫu thiết kế căn hộ 5x20m theo phong cách hiện đại, hy vong với những chia sẻ trên có thể giúp bạn có thể cung cấp thêm cho bạn một ý tưởng hay để thiết kế công trình cho mình. Nếu bạn còn thắc mắc có thể liên hệ với công ty AFTA để được tư vấn chi tiết hơn nhé!




