THIẾT KẾ KHÁCH SẠN ĐẸP | KHÁCH SẠN SUNSHINE TẠI ĐÀ NẴNG
THÔNG TIN CÔNG TRÌNH KHÁCH SẠN SUNSHINE
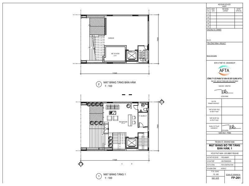
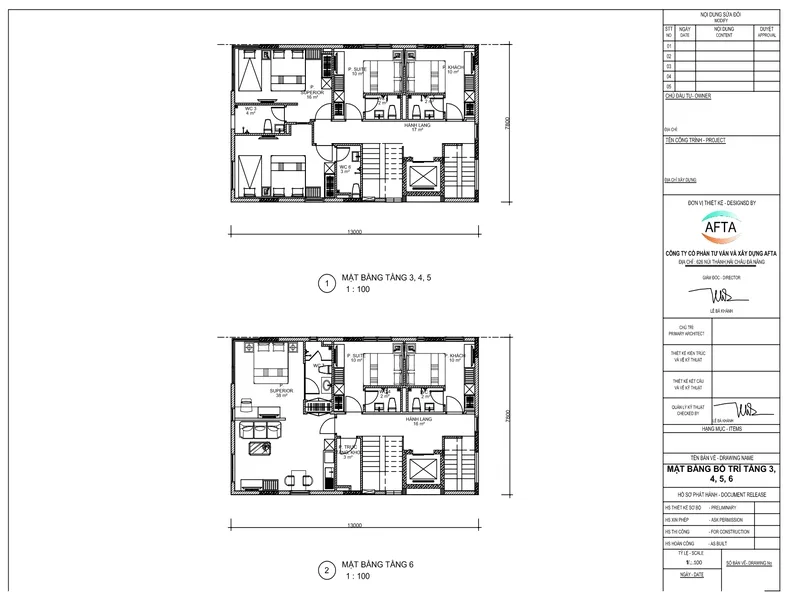
Với diện tích 7.8x13m, thiết kế khách sạn Đà Nẵng Sunshine được AFTA thiết kế 12 phòng, mỗi tầng 2 phòng đôi, tận dụng tối đa diện tích nhưng vẫn đảm bảo tối đa công năng của thiết kế khách sạn 3 sao Đà Nẵng. Đây là một mẫu thiết kế khách sạn đẹp, công năng phù hợp mà khách hàng quan tâm không thể bỏ qua.
- TỔNG QUAN KHÁCH SẠN SUNSHINE


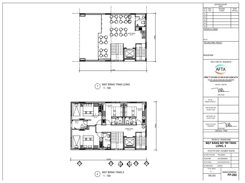
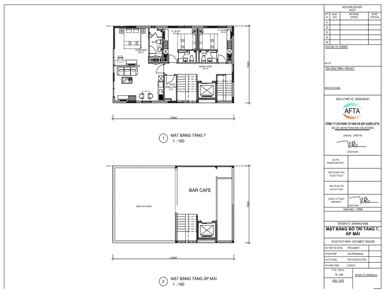
- MẶT BẰNG CÔNG NĂNG SỬ DỤNG TRÊN BẢN VẼ 2D




XEM CHI TIẾT THEO VIDEO BÊN DƯỚI BẠN NHÉ!
- KHU VỰC LỄ TÂN

- KHU VỰC NHÀ HÀN

- KHU VỰC NHÀ HÀNG

CÁC LOẠI PHÒNG TẠI KHÁCH SẠN
Phòng giường đơn


Phòng giường đôi





Phòng VIP

[Miễn phí] Tư vấn thiết kế và thi công khách sạn Đà Nẵng
Sự kiện : “Khai trương chi nhánh văn phòng Afta tại TP.HCM ” ưu đãi thiết kế chỉ từ 89K vẫn đang chờ.
Ưu đãi bao gồm :
- Khảo sát đo đạc hiện trạng
- Mặt bằng công năng sử dụng 2D
- Phối cảnh 3D ngoại thất
- Triển khai hồ sơ kiến trúc
- Triển khai hồ sơ kết cấu
- Triển khai hồ sơ điện nước
- Dự toán chi phí xây dựng
Thiết kế văn phòng hiện đại – chuyên nghiệp – uy tín
Ưu đãi thêm
- Dự án là thi công sẽ hoàn toàn miễn phí chi phí thiết kế và hồ sơ xin phép xây dựng.
- Khách hàng muốn thiết kế thêm hạng mục nội thất, vui lòng liên hệ để được AFTA nâng cấp lên gói
- Tặng video phối cảnh ngoại thất
Chúng tôi cam kết :
- Tư vấn tận tình, chu đáo, khảo sát thực tế cùng khách hàng tìm ra giải pháp tối ưu nhất
- Chi phí cạnh tranh nhất phù hợp với ngân sách tài chính của khách hàng
- Chất lượng thiết kế và công trình đảm bảo an toàn, giá trị thẩm mỹ và công năng sử dụng
Nhấc máy gọi ngay cho chúng tôi hoặc để lại thông tin liên hệ, thắc mắc AFTA giải đáp sớm nhất và nội dung đầy đủ nhất cho bạn.
Điện thoại: 0935 29 5161
Gmail: aftavietnam@gmail.com
Trụ sở chính : 626 Núi Thành, Hải Châu, Đà Nẵng
Hoặc nhắn tin trực tiếp Fanpage
- Chi nhánh HCM : 566/153 Nguyễn Thái Sơn, Phường 5, Gò Vấp, TP.Hồ Chí Minh
- Chi nhánh Lâm Đồng : 18/1 Quang Trung, Đà Lạt, Lâm Đồng





