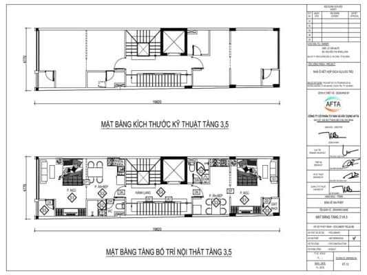
thi-cong-can-ho-chung-cu Được xuất bản vào 02/12/2022 tại 800 × 600 trong thi-cong-can-ho-chung-cu Mặt bằng bố trí tầng 7thiet ke va thi cong can ho, thiet ke can ho da nang, can ho da nang, can ho dep, thiet ke can ho dep tai da nang← TrướcTiếp theo →