Xây dựng căn hộ cho thuê là một trong những mô hình kinh doanh thu lợi nhuận lớn được nhiều người lựa chọn. Một vấn đề đặt ra là: “Làm sao xây dựng căn hộ Đà Nẵng với chi phí thấp nhưng hiệu quả kinh doanh cao? Vậy hãy cùng tìm hiểu cách thi công căn hộ cho thuê tại Đà Nẵng đạt hiệu quả cao cùng với công ty thiết kế nhà đẹp Đà Nẵng nhé!
Xây Dựng Căn Hộ Đà Nẵng Gồm Các Hạng Mục Gì?
Xây dựng là hạng mục quan trọng quyết định tới chất lượng, độ an toàn và công năng sử dụng trong căn hộ. Trong đó, có các công việc thi công phần thô Đà Nẵng được tiến hành như sau:
- Chuẩn bị mặt bằng, thi công phần móng và nền tầng 1 (tầng trệt).


- Thi công coppha, cốt thép, đổ bê tông cho cầu thang, đà giằng, đà kiềng, dầm, cột, sàn…tất cả các tầng, sân thượng và mái theo thiết kế.


- Xây gạch, tô tường trát tường hoàn thiện tất cả, tường ngăn phòng, hộp gen kỹ thuật.

- Xây bậc tam cấp, bậc cầu thang bằng gạch ống (không tô mặt và thành bậc vì vị trí này sẽ ốp đá Granit).
- Lắp đặt hệ thống đường ống cấp thoát nước nguội âm tường (Không bao gồm hệ thống ống nước nóng năng lượng mặt trời).

- Thi công lắp đặt hệ thống đường ống luồn, đầu nối các loại dây điện, dây điện thoại, dây internet, cáp truyền hình âm tường (Không bao gồm mạng Lan cho văn phòng, hệ thống chống sét, hệ thống ống đồng cho máy lạnh, hệ thống điện 3 pha).
- Thi công chống thấm sê nô, WC, sân thượng….
- Nhân công thi công và hoàn thiện: xây tô, cán nền, lót gạch các tầng và lắp thiết bị vệ sinh, đồ điện (Không bao gồm công tác đá, đóng trần, lắp đồ thiết kế nội thất đẹp Đà Nẵng, sơn nước, lắp camera, mạng thoại và điều hòa không khí).
- Thi công phần mái lợp tôn hoặc mái ngói (nếu có).
Thi Công Xây Dựng Căn Hộ Đà Nẵng Cần Lưu Ý Gì?
Mô hình kinh doanh xây dựng căn hộ (Apartment) cho thuê hiện nay có độ cạnh tranh rất lớn. Nếu bạn đang có ý định đầu tư kinh doanh vào lĩnh vực này thì bạn nên xem những thông tin sau:
- Xác định được đối tượng khách hàng cho thuê mục tiêu, lựa chọn đơn vị thiết kế chuyên nghiệp;
- Ngân sách dự trù xây dựng, để lên bảng thết kế cho phù hợp;
- Tìm hiểu thủ tục pháp lý (thủ tục xây dựng, thủ tục kinh doanh)
- Xác định diện tích của căn hộ cho thuê là lớn hay nhỏ để dễ dàng bố trí công năng một cách dễ dàng hơn.

- Thiết kế nội thất và ngoại thất căn hộ cần đảm bảo chất lượng và tính thẩm mỹ


- Lựa chọn đúng nơi nhận xây dựng căn hộ Đà Nẵng

- Giám sát thi công công trình
>>> Xem ngay báo giá thiết kế nhà phố tại Đà Nẵng chi tiết!
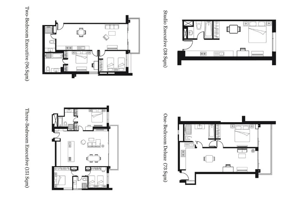
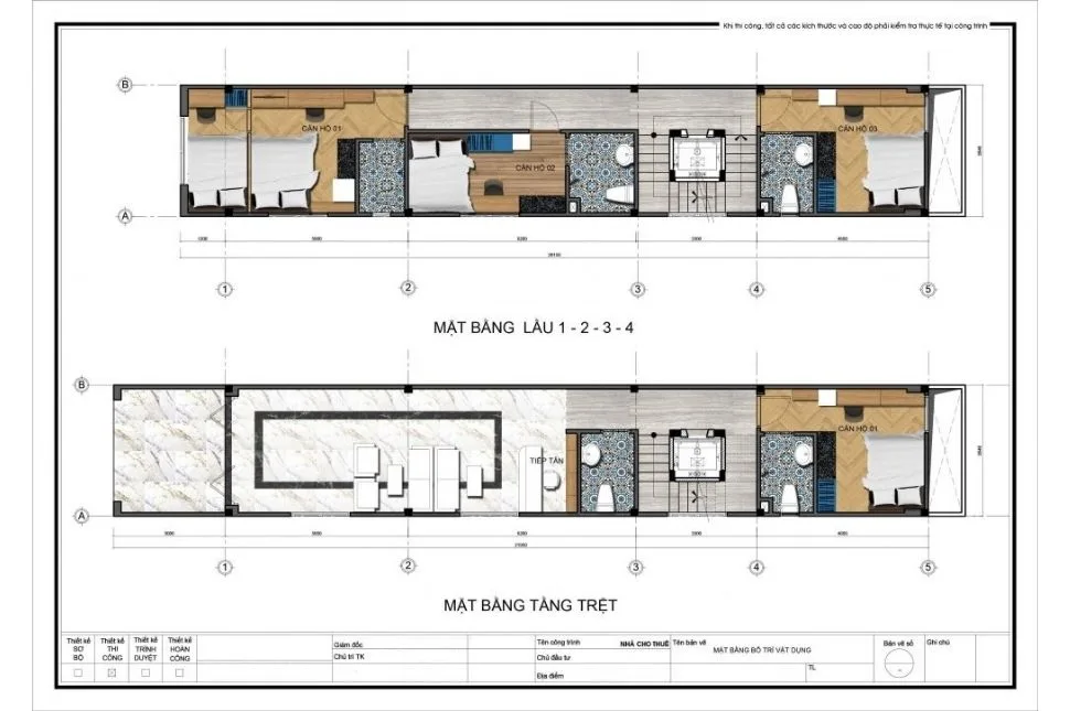
Các Mẫu Bản Vẽ Xây Dựng Căn Hộ Chung Cư Đà Nẵng
Bạn có thể tham khảo một số mẫu bản vẽ xây dựng căn hộ Đà Nẵng của Afta đã thiết kế dưới đây
Cam Kết Vật Tư Khi Xây Dựng Căn Hộ Tại Đà Nẵng
Trong trường hợp chủ đầu tư lựa chọn gói thầu có vật liệu xây dựng AFTA, đơn vị thi công căn hộ cho thuê Đà Nẵng uy tín cam kết cung cấp đủ số lượng và chất lượng vật liệu xây dựng. Các vật liệu xây dựng căn hộ được AFTA sử dụng cho công trình cam kết có chất lượng kỹ thuật tốt
- Cung cấp các loại xi măng PCP40, PCP30: Kim Đỉnh/ Hoàng Thạch
- Sắt thép, kẽm chất lượng cao thuộc hiệu Việt Mỹ/ Hòa Phát
- Gạch ống, thẻ loại A (Gạch Đại Hưng)
- Cát sạch xây dụng đúc, xây, tô: Túy Loan hoặc Thanh Vinh
- Đá Phước Tường (Loại 1×2)
- Bê tông đổ móng, dầm, sàn các tầng (M300), dùng phụ gia phát triển nhanh cường độ R7: Đăng Hải, Vinaconex, Hòa Cầm…
- Dây điện, lõi bằng đồng: Cadivi
- Ống nhưa thoát nước: sử dụng ống nhựa Bình Minh
- Ống nước cấp và nước nóng sửa dụng ống Tiền Phong

Một Số Dự Án Xây Dựng Căn Hộ Đà Nẵng Do AFTA Thi Công
Tham khảo một số dự án xây dựng căn hộ do AFTA thực hiện để thấy được chất lượng của công trình và quy trình làm việc chuyên nghiệp.
Xem thêm: Tổng hợp 10 dự án xây dựng căn hộ cao cấp Đà Nẵng đáng sống nhất
Các Yếu Tố Ảnh Hưởng Đến Giá Xây Dựng Căn Hộ Đà Nẵng
Mỗi đơn vị nhà thầu lại có báo giá thi công phòng trọ Đà Nẵng riêng. Tuy nhiên chi phí căn hộ Đà Nẵng đều được tính toán dựa vào các yếu tố: thiết kế, vị trí, diện tích mặt bằng; phương án và thời gian thi công; gói thầu….
Chi phí xây dựng căn hộ mini phụ thuộc vào các yếu tố trong hồ sơ thiết kế. Cụ thể là:
Vị trí, diện tích mặt bằng
- Vị trí có thể là trong hẻm, ngoài đường lớn, trung tâm nội thành hay ngoại thành. Nếu như tại đường lớn thì khả năng vận chuyển vật liệu sẽ dễ dàng hơn và tiết kiệm chi phí hơn so với trong hẻm.
- Diện tích mặt bằng rộng hay hẹp, hình dạng mặt bằng vuông vức hay bo tròn. Nếu bo tròn thì chi phí xây sẽ cao hơn vì khả năng thi công khó hơn.

Yếu tố thiết kế
Trong trường hợp chưa có thiết kế thì đơn vị thi công căn hộ có thể gợi ý một số mẫu thiết kế nhưng sẽ không tối ưu khi được thiết kế căn hộ bài bản. Riêng báo giá bao gồm dịch vụ thiết kế và chi phí thi công sẽ nhỉnh hơn so với báo giá chỉ có dịch vụ thi công, tuy nhiên chi phí này sẽ được khấu trừ lại khi khách hàng chọn thết kế và thi công trọn gói.
Ngoài ra, phong cách thiết kế khác nhau cũng ảnh hưởng đến giá thi công căn hộ, vì phụ thuộc vào độ phức tạp, các chi tiết khi thi công phần thô và hoàn thiện
Phương án và thời gian thi công của đơn vị xây dựng căn hộ
Chi phí thi công xây dựng căn hộ lớn chỉ khi:
- Phương án thi công an toàn, đội ngủ chuyên nghiệp và máy móc hiện đại.
- Thời gian thi công mau chóng.
Chất lượng công trình
- Thi công thiết bị điện và nước an toàn, khoa học có chi phí hợp lý;
- Đổ và trộn bê tông truyền thống hay sử dụng máy?
- Công trình thi công không bị nứt, chống thấm hiệu quả;
- Hình dạng của dầm và kết cấu mặt sàn;
- Trọng lượng và kết cấu của từng bộ phận;
- Mức độ phức tạp của các kết cấu tổng thể công trình.
Loại vật liệu, số lượng vật liệu
- Báo giá thi công phần thô Đà Nẵng bao gồm chi phí vật liệu nào?
- Giá các loại vật liệu thô (Chưa qua gia công) khác nhau;
- Cùng là một loại vật liệu có giá khác nhau do nguồn gốc, nhà sản xuất và chất lượng.
Gói thầu
- Gói thầu gồm: nhân công + vật liệu + thi công phần thô
- Gói thầu gồm: nhân công + thi công phần thô (chưa bao gồm vật liệu).
- Gói thầu gồm: thi công phần thô + hoàn thiện.
Mức độ uy tín của đơn vị thi công
Nhà thầu thi công lớn, lâu đời thường có chi phí xây dựng cao hơn so với những nhà thầu nhỏ và mới thành lập. Nhưng mức giá chênh lệch giữa các nhà thi công không cao.
Đơn giá xây dựng căn hộ Đà Nẵng thay đổi khi
- Diện tích đất xây dựng bé;
- Vị trí mảnh đất nằm ở vị trí khó thi công như trong ngõ, hẽm;
- Công năng của công trình cần sử dụng.
Báo Giá Xây Dựng Căn Hộ Đà Nẵng
Đối với những công trình, nhà ở chưa có hồ sơ thiết kế thì Quý khách hàng có thể tham khảo mức báo giá này là mức giá tiêu chuẩn, gói tiết kiệm để mình tham khảo khi xây nhà, hay các công trình khác trong tương lai.
Mức giá xây dựng nhà chung cư Đà Nẵng cụ thể cho mỗi công trình có thể thấp hoặc cao hơn mức tiêu chuẩn. Nếu cần tư vấn cụ thể về giá thầu phần thô + nhân công hoàn thiện này, Quý khách hàng vui lòng liên hệ đến AFTA để được tư vấn hoàn toàn miễn phí.
Xem thêm bảng giá xây dựng khách sạn Đà Nẵng mới nhất!
Vì Sao Nên Chọn Công Ty Xây Dựng AFTA Để Thi Công Căn Hộ?
Kinh doanh cho thuê căn hộ hiệu quả hay không phụ thuộc không nhỏ ở yếu tố kiến trúc, công năng sử dụng của công trình. Vì vậy chủ đầu tư tìm hiểu thông tin kỹ lưỡng và cân nhắc lựa chọn đơn vị thi công căn hộ Đà Nẵng.
Với nhiều năm kinh nghiệm, AFTA là thương hiệu tư vấn và xây dựng trao giải pháp nhận lại sự hài lòng ở khách hàng. Lý do bạn nên chọn Công ty Cổ phần Tư vấn và Xây dựng AFTA là vì:
- Hỗ trợ thực hiện thủ tục pháp lý khi xây dựng nếu khách hàng có nhu cầu.
- Chi phí xây dựng trọn gói, không có chi phí phát sinh thêm.
- Cam kết công trình đạt chất lượng tốt, đáp ứng đầy đủ công năng/mục đích sử dụng của khách hàng, an toàn và có độ bền cao.
- Thời gian xây dựng nhanh.
- Gia chủ không tốn nhiều công sức, lao lực vì xây dựng công trình. Công việc của khách hàng chỉ là giám sát công trình.
- Báo giá chi tiết thi công căn hộ cho thuê Đà Nẵng đầy đủ. Đặc biệt đơn vị có chính sách ưu đãi khi khách hàng sử dụng trọn gói hai dịch vụ thiết kế và xây dựng căn hộ

XEM THÊM: Báo giá xây nhà tiền chế Đà Nẵng chi tiết cập nhật mới nhất
Quy Trình Nhận Xây Dựng Căn Hộ Đà Nẵng
Quy trình tiếp nhận thi công căn hộ Đà Nẵng gồm có 2 giai đoạn là: lập hồ sơ kỹ thuật và thực hiện thi công. Trong đó bao gồm các công việc được tiến hành sau:
Giai đoạn 1: Lập hồ sơ thi công, thiết kế kỹ thuật
Trong trường hợp bên khách hàng chưa có hồ sơ thiết kế kỹ thuật từ trước thì phía đơn vị thi công có thể lên hồ sơ thiết kế theo yêu cầu cụ thể của khách hàng.

Giai đoạn 2: Triển khai thi công
- Lên phương án thi công chi tiết và thời gian hoàn thiện

- Dọn dẹp công trường trước khi thi công: dọn dẹp mặt bằng, vận chuyển vật tư…

- Thi công hạ tầng, phần móng

- Thi công sàn tầng

- Xây tường, tô trát

- Hoàn thiện

Lưu ý: Nên tháo dỡ và bàn giao mặt bằng trước nếu mảnh đất xây dựng có công trình cũ.
Các dịch vụ thiết kế và thi công khác của AFTA

Thiết kế nhà ống
Xem chi tiết: Thiết kế nhà ống đẹp Đà Nẵng

Thiết kế nội thất
Xem chi tiết: Thiết kế nội thất đẹp Đà Nẵng

Thiết kế quán cà phê
Xem chi tiết: Thiết kế quán cà phê Đà Nẵng

Thiết kế khách sạn
Xem chi tiết: Thiết kế khách sạn Đà Nẵng

Thiết kế nhà cấp 4
Xem chi tiết: Thiết kế nhà đẹp cấp 4 Đà Nẵng

Xây dựng căn hộ
Xem chi tiết: Xây dựng căn hộ Đà Nẵng

Thi công nhà xưởng
Xem chi tiết: Thi công nhà xưởng Đà Nẵng

Thi công phần thô
Xem chi tiết: Thi công phần thô Đà Nẵng

Thi công phòng trọ
Xem chi tiết: Thi công phòng trọ Đà Nẵng


























