Với những mầu đất 2 lô thì nên thiết kế căn hộ như thế nào để vừa tối ưu diện tích vừa đảm bảo công năng cho căn hộ. Cùng tham khảo mẫu căn hộ 10 mét mặt tiền dưới đây của công ty AFTA để lấy thêm ý tưởng hay nhé!
Thông tin công trình Khoa – apartment

Chủ đầu tư: anh Khoa
Loại hình: Thiết kế căn hộ cho thuê Đà Nẵng
Địa chỉ: Hòa Quý, Ngũ Hành Sơn, Đà Nẵng
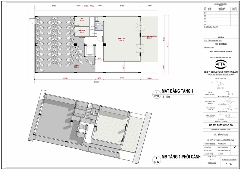
Diện tích: 10×21,5m
Số tầng: 6 tầng + Tum
Công năng:
- Tầng 1: Sảnh trước là khu vực kinh doanh, phía sau là khu vực để xe

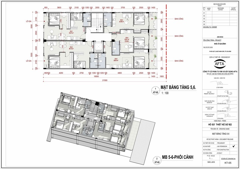
- Tầng 2,3,4: Mỗi tầng gồm 6 căn hộ cho thuê đầy đủ công năng

- Tầng 5,6: Mỗi tầng gồm 2 căn hộ 2 phòng ngủ và 3 căn hộ 1 phòng ngủ

Phổi cảnh mặt tiền căn hộ 10 mét mặt tiền

Mặt tiền căn hộ được thiết kế theo phong cách tối giản, kết hợp tinh tế với nét cổ điển nhẹ nhàng, tạo nên vẻ đẹp hài hòa và sang trọng. Tổng thể kiến trúc không quá cầu kỳ, nhưng vẫn toát lên sự cuốn hút nhờ những chi tiết được tính toán kỹ lưỡng.
Điểm nhấn nổi bật của công trình nằm ở các đường cong bo góc mềm mại, được các kiến trúc sư khéo léo ứng dụng để tăng tính uyển chuyển và tạo cảm giác nhẹ nhàng cho không gian. Chính sự kết hợp giữa nét hiện đại giản dị và chút cổ điển tinh tế đã mang đến diện mạo độc đáo, giúp căn hộ nổi bật giữa khu đô thị, đồng thời thể hiện gu thẩm mỹ tinh tế của chủ đầu tư.

Khu vực cánh gà sẽ được xây bằng gạch hoa, loại vật liệu vừa đảm bảo tính thẩm mỹ vừa mang lại hiệu quả sử dụng cao. Gạch hoa giúp không gian thông thoáng, tạo sự lưu thông không khí tự nhiên, đồng thời vẫn che chắn tốt trước tác động của mưa nắng. Nhờ đặc tính bền đẹp và khả năng lấy sáng tinh tế, gạch hoa không chỉ bảo vệ mặt tiền mà còn góp phần làm cho tổng thể công trình trở nên hài hòa, hiện đại và ấn tượng hơn.

Trên đây là mẫu căn hộ 6 tầng 2 lô, nếu bạn có dự định xây dựng căn hộ cho thuê có thể tham khảo mẫu trên của AFTA để có thêm ý tưởng. Và nếu bạn còn thắc mắc hoặc cần giải tư vấn thêm hãy liên hệ qua trang Facebook AFTA thiết kế và thi công để được hỗ trợ nhé!




