Thiết kế biệt thự ngày nay vô cùng đa dạng, từ phong cách hiện đại, cổ điển cho đến những dấu ấn cá nhân hóa độc đáo. Trong số đó, phong cách hiện đại luôn được ưa chuộng bởi sự tinh tế, phù hợp với xu hướng sống đương đại. Dưới đây, công ty AFTA xin giới thiệu một mẫu dự án biệt thự Đà Nẵng hiện đại ấn tượng, mọi người cùng tham khảo nhé!
Thông tin dự án biệt thự hiện đại, sang trọng
- Chủ đầu tư: Anh Long, chị Nga
- Loại hình: Biệt thự
- Địa chỉ: Hòa Xuân, Đà Nẵng
- Diện tích: 12x25m
- Số tầng: 4 tầng

Thiết kế biệt thự không chỉ đơn thuần là tạo nên một không gian ở đẹp mà còn mang lại nhiều giá trị thiết thực cho gia chủ. Trước hết, một thiết kế biệt thự bài bản giúp tối ưu công năng sử dụng. Mỗi khu vực như phòng khách, phòng ngủ, bếp hay không gian sinh hoạt chung đều được bố trí hợp lý, thuận tiện cho sinh hoạt hằng ngày và đảm bảo sự riêng tư cần thiết.
Bên cạnh đó, biệt thự được thiết kế tốt sẽ nâng cao chất lượng sống. Không gian rộng rãi, nhiều ánh sáng tự nhiên, kết hợp với cây xanh và thông gió tự nhiên giúp môi trường sống luôn thoáng đãng, dễ chịu và tốt cho sức khỏe. Và dưới đây là công năng của dự án căn biệt thự này mọi người cùng theo dõi với AFTA nhé!
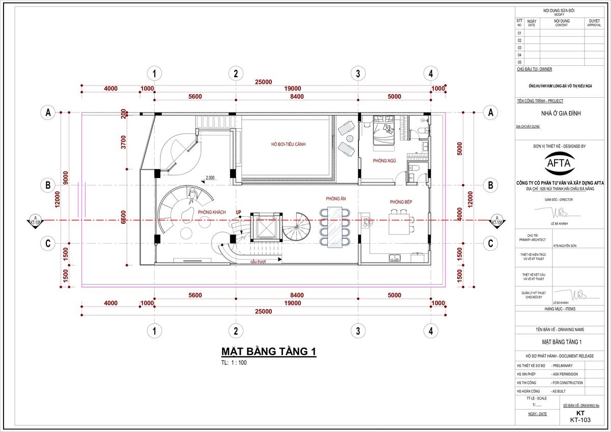
Công năng sử dụng
Bán hầm: Gara để xe, phòng kara để xe, phòng kỹ thuật hồ bơi

Tầng 1: Hồ bơi tiểu cảnh, phòng khách, phòng bếp ăn, 1 phòng ngủ

Tầng 2: Sinh hoạt chung, 3 phòng ngủ

Tầng 3: Phòng thờ, 1 phòng ngủ, sân phơi, sân thượng

Tầng tum: Ô kỹ thuật thang máy

Thiết kế 3D ngoại thất
Căn biệt thự mang phong cách kiến trúc hiện đại, tối giản nhưng tinh tế, nổi bật với các khối hình học vuông vức và đường nét dứt khoát. Mặt tiền sử dụng sự kết hợp hài hòa giữa vật liệu kính, đá ốp tối màu và gỗ ấm, tạo nên sự tương phản sang trọng và chiều sâu thị giác. Hệ cửa kính lớn giúp mở rộng không gian, tận dụng ánh sáng tự nhiên và kết nối nội – ngoại thất. Các mảng xanh được bố trí khéo léo ở ban công và sân vườn, mang lại cảm giác gần gũi với thiên nhiên. Tổng thể thiết kế toát lên vẻ đẳng cấp, hiện đại và phù hợp với lối sống tiện nghi, tinh gọn.
Trên đây là mẫu thiết kế căn biệt thự hiện đại sang trọng, nếu bạn đang cần tìm hiểu hoặc cần tư vấn về biệt thự thì liên hệ với AFTA để bên mình hỗ trợ nhé! Hoặc có thể liên hệ qua Fanpage AFTA thiết kế và thi công để nhận thông báo sớm nhất nhé








