Hiện nay quỹ đất tại các thành phố lớn càng ngày càng nhỏ và để xây được một căn nhà rộng rãi, đáp ứng được đẩy đủ các khu vực sinh hoạt là rất khó. Vậy nên nhiều người đã lựa chọn giải pháp xây thêm tầng. Dưới đây là một mẫu nhà phố 5 tầng có thang máy được chủ đầu tư lựa chọn với nhu cầu muốn sở hữu không gian sống rộng hiện đại, tiện nghi. Cùng thiết kế nhà đẹp Đà Nẵng khám phá mẫu nhà phố 5 tầng này nhé!
Thông tin về mẫu nhà phố 5 tầng

Thông tin công trình:
- Chủ đầu tư: Chú Hậu
- Địa chỉ: Phường Hòa Cường, Đà Nẵng
- Diện tích: 4,5x22m
- Diện tích thiết kế: 495m2
- Số tầng: 5 tầng 1 tum
Hồ sơ thiết kế bao gồm:
- Bản vẽ kiến trúc: Bản vẽ phối cảnh bằng 2D; Phối cảnh tiền 3D
- Thiết kế kết cấu Đà Nẵng,
- Thiết kế điện nước công trình Đà Nẵng

Có thể bạn quan tâm:
Công năng sử dụng của nhà phố 5 tầng có thang máy
Trong thiết kế nhà ở, việc bố trí công năng sử dụng luôn đóng vai trò quan trọng, giúp tối ưu không gian và đảm bảo sự tiện nghi cho gia đình. Một ngôi nhà dù có kiến trúc đẹp đến đâu, nếu không được thiết kế hợp lý, vẫn có thể gây ra sự bất tiện trong sinh hoạt hàng ngày.
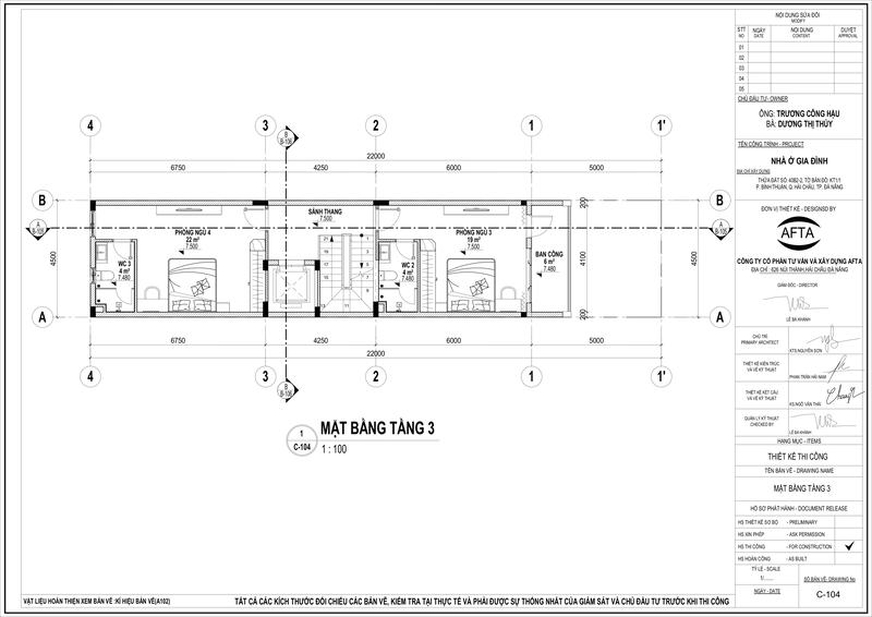
Dưới đây là công năng sử dụng của dự án, chúng được bố trí khoa học, tối ưu diện tích và đảm bảo sự tiện lợi cho gia đình. Từng không gian đều được tính toán kỹ lưỡng nhằm tạo sự hài hòa giữa công năng và tính thẩm mỹ. Hãy cùng khám phá bản vẽ chi tiết qua những hình ảnh dưới đây!
- Tầng 1: Sân trước đc thiết kế làm Gara ôtô và khi khức để xe máy, đi vào bên trong là có phòng khách bếp, WC. Ngoài ra ở tầng 1 còn được bố trí phòng kỹ thuật, thang bộ, thang máy.

- Tầng 2: Gồm 2 phòng ngủ khép kín và có vệ sinh trong phía trước 1 phòng và phía sau 1 phòng, ở giữa là thang bộ và thang máy.

- Tầng 3: Gồm 2 phòng ngủ khép kín và có vệ sinh trong phía trước 1 phòng và phía sau 1 phòng, ở giữa là thang bộ và thang máy.

- Tầng 4: Phía trước gồm 1 phòng ngủ ban công và 1 vệ sinh trong, phía sau gia chủ phân chia thành các khu vực để xông hơi

- Tầng 5: Phía trước gồm phòng thờ, kho, phía sau là khu giặt, phơi.

- Tầng tum: Che thang máy, sân thượng.

Xem video phối cảnh 3D nhà phố có thang máy dưới đây:
Thiết kế ngoại thất 3D nhà phố 5 tầng 1 tum
Ngôi nhà mang phong cách hiện đại với hình khối vuông vức, tông màu trắng chủ đạo kết hợp gỗ ốp trần và lan can kính, tạo vẻ thanh lịch, sang trọng. Hệ thống đèn LED âm trần giúp ngôi nhà nổi bật vào ban đêm.

Cổng chính thiết kế kim loại kết hợp gỗ, dạng thanh dọc tạo sự thoáng đãng. Mỗi tầng đều có ban công với cây xanh, giúp không gian gần gũi thiên nhiên. Tầng tum mở thoáng với giàn cây xanh, vừa che nắng vừa tạo điểm nhấn thẩm mỹ.
Trên đây là dự án thiết kế nhà phố 5 tầng có thang máy được thiết kế bởi AFTA. Nếu bạn đang có nhu cầu Nhà ở kết hợp kinh doanh Đà Nẵng, báo giá thi công phần thô Đà Nẵng thì hãy liên hệ với AFTA nhé!




