Nhà phố là chốn trở về sau mỗi ngày dài làm việc, vì vậy trong thiết kế, yếu tố công năng luôn cần được đặt lên hàng đầu. Đây là không gian sinh hoạt hàng ngày của cả gia đình, nên sự tiện nghi và bố trí hợp lý sẽ góp phần mang lại cảm giác thoải mái, dễ chịu trong từng khoảnh khắc sống. Vậy làm thế nào để thiết kế một mẫu nhà phố 4 tầng Đà Nẵng hiện đại, vừa đảm bảo thẩm mỹ vừa tối ưu công năng? Hãy cùng xem mẫu thiết kế dưới đây của công ty AFTA nhé!
Mẫu nhà phố 4 tầng
Thông tin dự án
- CĐT: anh Sinh
- Địa chỉ: Hòa Cường Bắc, Đà Nẵng
- Loại hình: Nhà phố
- Diện tích: 5x21m
- Số tầng: 4 tầng

Công năng
- Tầng 1: Gara xe oto, xe máy, phòng làm việc

- Tầng lửng: phòng khách, bếp, phòng ngủ 1, ban công

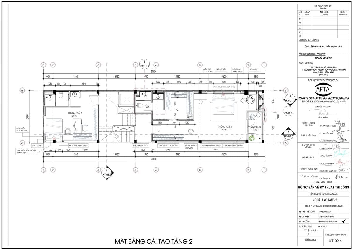
- Tầng 2: Phòng ngủ 2, phỏng ngủ master 3

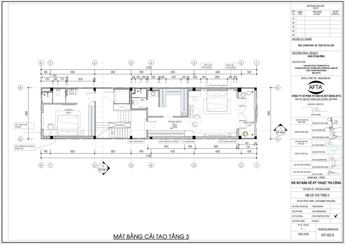
- Tầng 3: Phòng ngủ 4, phòng ngủ master 5

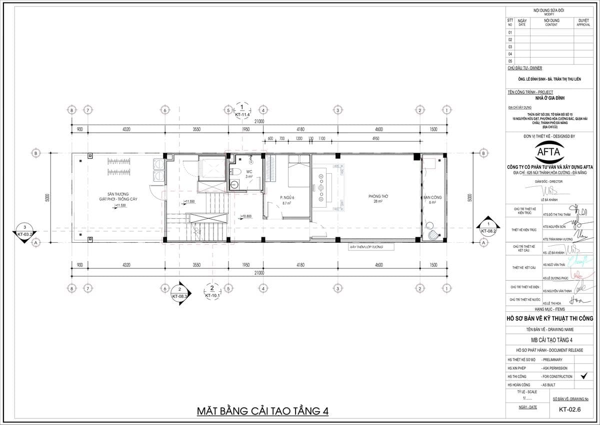
- Tầng 4: Phòng thờ, sân thượng sân phơi, ban công, phòng ngủ 6

Thiết kế 3D ngoại thất
Mẫu nhà phố 4 tầng được thiết kế theo phong cách hiện đại với mặt tiền tối giản, không chỉ mang lại vẻ đẹp tinh tế mà còn giúp chủ đầu tư tối ưu đáng kể chi phí xây dựng. Bên cạnh đó, bố trí công năng của ngôi nhà được bố trí khoa học, phù hợp với nhu cầu sử dụng và số lượng thành viên trong gia đình, đảm bảo sự tiện nghi và thoải mái trong sinh hoạt.
Để hoàn thiện mẫu thiết kế này, đội ngũ kiến trúc sư đã dành nhiều thời gian nghiên cứu và lựa chọn các vật liệu tối ưu, vừa đảm bảo giá trị thẩm mỹ, vừa giúp tiết kiệm chi phí một cách hiệu quả cho khách hàng.
Trên đây là mẫu nhà phố 4 tầng của AFTA hy vọng với mẫu thiết kế trên sẽ giúp bạn có thêm ý tưởng hay để áp dụng cho dự án căn nhà của chính mình. Ngoài ra nếu cần tư vấn thiết kế về và thi công nhà phố các bạn có thể liên hệ với AFTA thiết kế và thi công để được hỗ trợ nhé!






